LA DELIBERA
Catania, San Berillo diventa zona pedonale permanente: 8 varchi elettronici e accesso regolamentato
Settant'anni dopo lo sventramento, lo storico quartiere del centro etneo torna alle persone
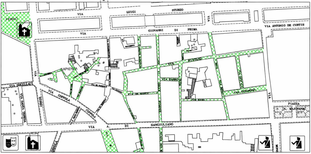
San Berillo cambia volto, di nuovo. Stavolta però non per uno sventramento, ma per una scelta. La Giunta comunale di Catania, presieduta dal sindaco Enrico Trantino, ha adottato la delibera di indirizzo per l'istituzione dell'Area Pedonale Urbana Permanente "San Berillo": un provvedimento immediatamente esecutivo che trasforma in zona pedonale il reticolo di strade del quartiere storico, da via De Pasquale a via Zara, da via Pistone a via Rocchetti, fino a via delle Finanze, via Reggio, via Buda e una dozzina di altre strade del tessuto urbano.
L'accesso sarà regolamentato attraverso otto varchi telematici gestiti dall'Azienda Metropolitana Trasporti e Sosta. Potranno transitare i residenti autorizzati, i mezzi di emergenza, le persone con disabilità e i veicoli per il carico e scarico nelle fasce orarie previste. Nei punti residuali saranno installati dissuasori fisici. Per le esigenze urgenti è prevista una procedura di regolarizzazione online.
Un quartiere che aspettava da settant'anni
San Berillo porta nel nome una ferita ancora aperta. Lo sventramento degli anni Cinquanta — uno dei più drastici interventi di demolizione urbana del dopoguerra italiano — spazzò via il quartiere originario, disperdendone gli abitanti e lasciando per decenni un tessuto frammentato, segnato da degrado e marginalità. La pedonalizzazione si inserisce in un Piano di Rigenerazione Urbana più ampio, che punta a ricucire quello strappo attraverso interventi strutturali già avviati.
Il più rilevante è la realizzazione del nuovo edificio di via Rocchetti, in fase avanzata di esecuzione: ospiterà un Centro sociale per i giovani e il volontariato e un Urban Center, spazio di confronto sulla pianificazione urbanistica aperto alle nuove generazioni. Parallelamente sono in corso di completamento la riqualificazione di via Pistone, via Reggio e via delle Finanze, già interessate da un sistema di illuminazione architettonica parzialmente attivo, pensato per valorizzare l'identità del quartiere e migliorare la percezione di sicurezza nelle ore serali.

L'entrata a regime della zona pedonale avverrà progressivamente, in parallelo al completamento dei cantieri.
Le voci dell'amministrazione
«San Berillo non sarà più un'area marginale», ha dichiarato il sindaco Trantino, «ma il simbolo della capacità di rigenerare la città a partire dalle sue radici, restituendo spazio alle persone e alla vita di quartiere». L'assessore alla Mobilità Luca Sangiorgio ha inquadrato il provvedimento in una strategia più ampia che privilegia gli spostamenti pedonali e ciclabili, leggendo la limitazione del traffico veicolare come opportunità e non come vincolo. L'assessore alla Viabilità Carmelo Coppolino ha rimarcato il lavoro tecnico svolto dalla Polizia Locale, che insieme all'UTU Mobilità diretta da Diego Peruga ha definito perimetro e deroghe con attenzione alle esigenze di controllo puntuale.
Nei prossimi giorni l'amministrazione procederà al completamento della segnaletica, all'attivazione definitiva dei sistemi elettronici e al potenziamento dell'arredo urbano. San Berillo, settant'anni dopo, torna a essere un quartiere da abitare.